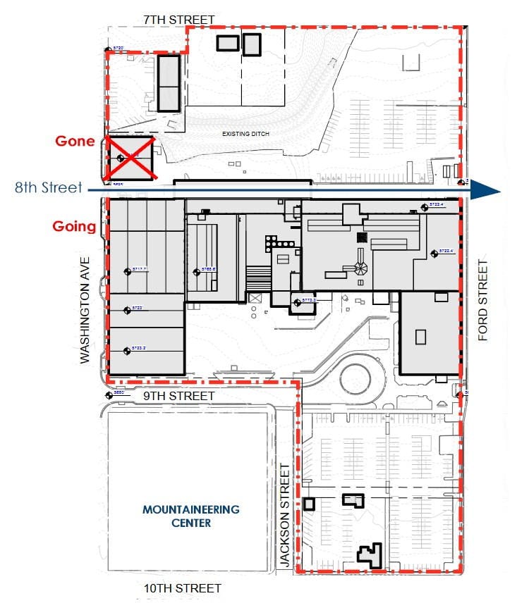
Demolition has started on the CoorsTek buildings. The first to go was a small, square building in the northwest corner. Dan Cohen, President of AC Development, points out that this was the only stand-alone building on the site--all other buildings are interconnected.

Yesterday, there were three excavators digging into the large building that has been roofless for quite some time. Chris Davell reported that the wreckage is being sorted and shipped off for recycling.

In the future, 8th Street will go through this area, from Washington Avenue to Ford Street (as will 9th Street).

Thanks to Chris Davell and Patrick Klein for documenting the process!
