A Spectacular Tulip Season

Photo by Richard Luckin - enlarge
What's happening in Golden today?
Events for Friday, Apr. 19th
- All day - The Friday Tour
- All day - CURRENT EXHIBITS AT THE MUSEUMS
- All day - Live Workouts with Community Center Pros
- All day - Golden History Tours

- 10AM-12PM - Rocky Mountain Quilt Study Group
- 10:15-10:45AM - Toddler Time
- 11AM-12PM - Public Info Meeting: Water Conservation Programs
- 3PM - Kit Mayer Classic
- 5:30-7:30PM - Break the People Pleasing Pattern
- 6-7:30PM - Tenderfoot Trekkers - Hiking Basics
- 6PM - Western on Washington: A Saloon Stroll
For more information, click the item above or visit the Golden Today Calendar
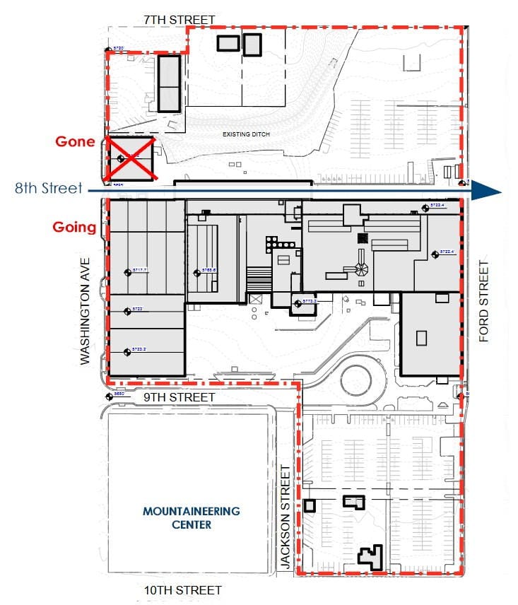
CoorsTek Demo Has Started

Chris Davell took this picture from the Xicamiti parking lot on Monday, 4/15/24 - enlarge
Demolition has started on the CoorsTek buildings. The first to go was a small, square building in the northwest corner. Dan Cohen, President of AC Development, points out that this was the only stand-alone building on the site--all other buildings are interconnected.

Yesterday, there were three excavators digging into the large building that has been roofless for quite some time. Chris Davell reported that the wreckage is being sorted and shipped off for recycling.

In the future, 8th Street will go through this area, from Washington Avenue to Ford Street (as will 9th Street).

Thanks to Chris Davell and Patrick Klein for documenting the process!

11AM-12PM Waste of Water Ordinance, the Lawn Replacement Program, and the Golden Drought Management Plan

Photo by Frank Hanou
Golden is hosting an educational public event all about water efficiency updates and programs. Staff will provide updates on the new Waste of Water Ordinance, the Lawn Replacement Program, and the Golden Drought Management Plan. More information
City Hall Council Chambers
911 10th Street (map)
Live Music for Friday, Apr. 19th

- 7:00 PM-10:00 PM: Luke Amelang @ Buffalo Rose @ Buffalo Rose
Buffalo Rose (Sky Bar Stage) - More Live Music
5-8PM Live Music @ Eddy Taproom
5:30-8:30PM Zea Stallings @ Barrels and Bottles @ Camp George West
6-9PM Halle Tomlinson Band @ Goosetown Station
7PM Mad Millie @ Dirty Dogs Roadhouse
9PM Karaoke @ Ace Hi Tavern
For more information, visit the Golden Today Calendar
Golden History: An Arbor Day Tale: Matt's Methodist Trees

Matt Burde's Tree Project, 2012-2023 - Google Street Images
In 2010, the City redesigned Jackson Street to include a bike lane and better sidewalks. The original plan called for a number of trees to be planted along the thoroughfare, to make it a more pleasant place to walk. Due to budgetary constraints, the trees on the east side between 15th & 16th (in front of the Methodist Church parking lot) were omitted from the final project.
Golden resident Matt Burde was serving on the Planning Commission at that time, and had been involved in the street project. He regretted the missing trees, wishing they had been included in the final plan. In 2011, he contact the Methodist Church to ask their support for planting trees in the buffer along Jackson Street, and in 2012, he approached GURA, asking whether they would contribute money to plant trees. It took about a year, and a couple of visits to GURA, but in 2013 GURA allocated $15,000 to plant 12 trees (four northern catalpas, four regal prince oaks, and four espresso coffee trees).

Matt worked with the city forester and department of public works, both of whom contributed their expertise and assistance, and the 12 trees were planted for well under the $15,000 GURA had allocated.
Thanks for the trees, Matt, Methodists, GURA, and the City Forestry Department!

Weather
Overnight: A chance of rain and snow showers. Cloudy, with a low around 30. North northeast wind around 5 mph. Chance of precipitation is 30%. New rainfall amounts less than a tenth of an inch possible.
Friday: A slight chance of rain and snow showers before 10am, then a chance of showers and thunderstorms between noon and 5pm, then a slight chance of thunderstorms and a chance of rain and snow showers. Mostly cloudy. High near 43, with temperatures falling to around 39 in the afternoon. North northeast wind 5 to 12 mph, with gusts as high as 18 mph. Chance of precipitation is 40%. New rainfall amounts less than a tenth of an inch possible.
Friday Night: A slight chance of thunderstorms and rain and snow. Cloudy, with a low around 32. Northeast wind 5 to 10 mph, with gusts as high as 16 mph. Chance of precipitation is 80%. New snow accumulation of 1 to 3 inches possible.
Friday Night: Slight Chance T-storms, 32°F
Saturday: Light Snow Likely then Chance Snow Showers, 42°F
Saturday Night: Mostly Cloudy, 34°F
Sunday: Sunny, 65°F
Sunday Night: Partly Cloudy, 45°F
Monday: Mostly Sunny then Slight Chance Rain Showers, 72°F
Monday Night: Partly Cloudy, 41°F
Tuesday: Mostly Sunny then Slight Chance Showers And Thunderstorms, 62°F
Tuesday Night: Slight Chance Rain Showers then Mostly Cloudy, 46°F
Wednesday: Mostly Sunny then Slight Chance Showers And Thunderstorms, 74°F
Wednesday Night: Slight Chance Showers And Thunderstorms then Partly Cloudy, 49°F
Thursday: Mostly Sunny then Chance Showers And Thunderstorms, 72°F
Supporters
Many thanks to the people and organizations who support What’s Happening in Golden? If you would like to support local news, please CLICK HERE!

Sponsors:
($100/month and up)
Buffalo Rose, Buglet Solar, Foothills Art Center, Golden City Brewery, Golden Cultural Alliance, Golden History Museum, Miners Alley Playhouse, The Golden Mill, Golden Chamber of Commerce, Golden History Tours, Morris & Mae Market, Miners Saloon, Colorado Railroad Museum, Tom Reiley, Bud Rockhill, Michael Mason, Lisa DeCaro and Len Matheo
Friends:
($50-99.99/month or $500/yr)
Tall Pines Painting, Baby Doe’s Clothing Paul Haseman, Donna Anderson, Carol & Doug Harwood, Beth Bidwell, Stephanie Painter, Greg Poulos, Ed and Carol Freza
Supporters:
($25-49.99/month or $250/yr)
Laura King and Scott Wilson, Bobby German and Alison McNally, Ann Norton & Jonathan Storer, Forrest Jones, Barry & Liz Bettis, Cheryl & Tom Schweich, Marjorie Sloan, Chris and Joyce Davell, Rick Flint, Forrest Jones, AC Development, and Cynthia Merrill Tamny
Members:
($10-24.99/month or $100/yr)
Brad Miller & Julie Bartos, Holly Thomas, Jim and LouAnne Dale, Ann Pattison, Thomas Hoffman, Carol Abel, Brian Quarnstrom, Sandra Curran, Bobby German and Alison McNally, Kathy Smith, Karen Smith, Carlos & Nancy Bernal, Robert Storrs, Michele Sannes, Elaine Marolla, Dixie Termin & Ron Miller, Carol & Don Cameron, Frank & Marsha Hanou, E Tom Hughes, Crystal M Culbert, Patrick A. Madison, Alice Madison & Jim Kalivas, Deb Goeldner, Christopher Ball, 6th Chair Home Services, Dot & Eric Brownson, Rosemary Coffman, Emeline Paulson, Casey & Gina Brown, Sandy Schneider, Mark and Cathy Pattridge, Cheryl G Leidich, Jen Rutter, Carol Abel, Frani R Bickart, Jennings and Litz, Bill Sedgeley, Nancy Hughes, Justin L Wade, Kathi Eggers, Traci Case, Donna Owen, Leslie D Lutz, Karen Oxman, Catherine Skokan, Ross Fraser, Lynne Haigh, Elizabeth Hilliard, and the Golden Transcript
Followers:
($5-9.99/month)
Golden Community Garden, Lora Haimes, Bill Fisher, Mariane Erickson, Susan Gray